ArCADia HEATING INSTALLATIONS

ArCADia HEATING INSTALLATIONS

สอบถามรายละเอียดเพิ่มเติมได้ที่ 
[email protected]
หรือ 098-952-4147, 098-253-8222, 095-536-5945

 
ราคารวม 00.00 บาท
What is ArCADia-HEATING INSTALLATIONS?
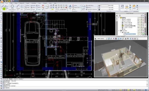
     ArCADia-HEATING INSTALLATIONS is an industry-specific module of the ArCADia BIM system, based on the ideology of Building Information Modelling (BIM). The program enables the creation of the professional technical documentation of internal double-pipe heating installations in buildings with BIM technology. Also, automatic generation of axonometric views, listings and the calculations necessary to develop the design documentation.
     ArCADia-HEATING INSTALLATIONS is an industry-specific module of the ArCADia BIM system. The program enables the creation of professional technical documentation of internal heating installations in buildings. The program is intended for design engineers of internal sanitary installations.
     The program allows the structural insertion of drawing elements on architectural foundations with the simultaneous creation of calculations schemes and the generation of three types of axonometric views. Additionally, it allows automatic selection of elements with consideration of the user’s preferences (a choice of catalogues for selecting elements) and automatic generation or reports and bills of materials or objects used in the project. The design may be executed on views of buildings created in the ArCADia-ARCHITECTURE program and executed in a CAD environment in the form of raster or vector files. The user may employ the library of elements used in heating installations, which can be expanded and adapted to the user’s needs in terms of the used equipment and types of pipeline materials. Furthermore, it is possible to develop a personal template with the option to save personal default settings for each program element and transfer it along with the project.
The program enables the checking of the correctness of the designed installation in terms of hydraulics and the selection of accessories.

PROGRAM CAPABILITIES:
  • Creation of drawings of the internal heating installation, starting from the heat source, through the heat meter and pipelines, and ending with the necessary fittings.
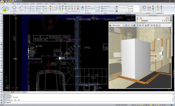
  • Insertion of heat receivers, i.e. panel, ribbed, bathroom or channel radiators, heating pipes, heaters and fan coil units.
  • Ability to insert surface heating installation, e.g. floor or wall heating.
  • Insertion of plumb lines and distribution cables from a rich library of pipes made from various materials. Ability to simultaneously insert several parallel cables with different functions and their smart connection.
  • Insertion of fittings and devices from a broad library of manufacturers (receivers, shut-off, return, safety, adjustment fittings, measuring devices, filters, hydraulic clutches, etc.).
  • Insertion of various types of accessories with individually set shapes and dimensions, e.g. heating boilers, expansion vessels.
  • Automatic generation of a set of connection fittings, including the option to modify them.
  • Drawing facilitation allows the fast and easy connection of multiple radiators, continuous insertion of routes of the vertical and horizontal installation sections as well as changing the level of many installation elements simultaneously; insertion typical object systems into the program library.
  • Insertion of an installation drawn up in a CAD environment and conversion of lines into pipelines (ArCADia BIM system objects).
  • Automatic creation of point numbering and description of the installation with the option to edit it. Creation of personal templates.
  • Generation of three types of axonometric views (including partial) and the ability to make obscured objects clearly visible by moving and shortening the sections in one short operation; ability to insert the shut-off fittings directly to the axonometric drawing with automatic inclusion in the view and in listings.
  • Calculation of the active gravitational pressure and linear and local pressure losses for all circuits, indication of the critical circuit.
  • Calculation of the required pressure in the installation with consideration of the regulation using the thermostatic valves.
  • Indication of the parameter values required for the circuit pump: lifting height and efficiency.
  • Checking the installation in terms of the correctness of connections.
  • Automatic selection of pipelines, insulation, thermostatic valves, shut-off fittings, etc., with consideration of the current regulations.
  • Generation of calculation reports, finished bills of materials, devices and connection fittings included in the project, intended for further processing and the execution of cost estimates and a quotation of the investment (export to the Ceninwest and Norma programs).
  • Generation of listings of receivers in rooms and listings taking into account the type of heating and capacity in the given room, including the building’s structure.
ความต้องการระบบ
  • ArCADia LT or ArCADia 10 or ArCADia PLUS 10 or Autodesk software AutoCAD® 2014/2015/2016/2017
  • If an industry-specific module is installed as an overlay for AutoCAD® software, ArCADia AC module is required.
  • Pentium-class computer (Intel Core i5 recommended)
  • 2 GB RAM minimum (min 8 GB recommended)
  • About 3 GB free hard disc space for installation
  • A graphics card compatible with DirectX 9.0 (a 1GB RAM card recommended)
  • OS: Windows 10 or Windows 8.1 or Windows 7