ArCADia 3D-MAKER

ArCADia 3D-MAKER

สอบถามรายละเอียดเพิ่มเติมได้ที่ 
[email protected]
หรือ 098-952-4147, 098-253-8222, 095-536-5945

 
ราคารวม 00.00 บาท
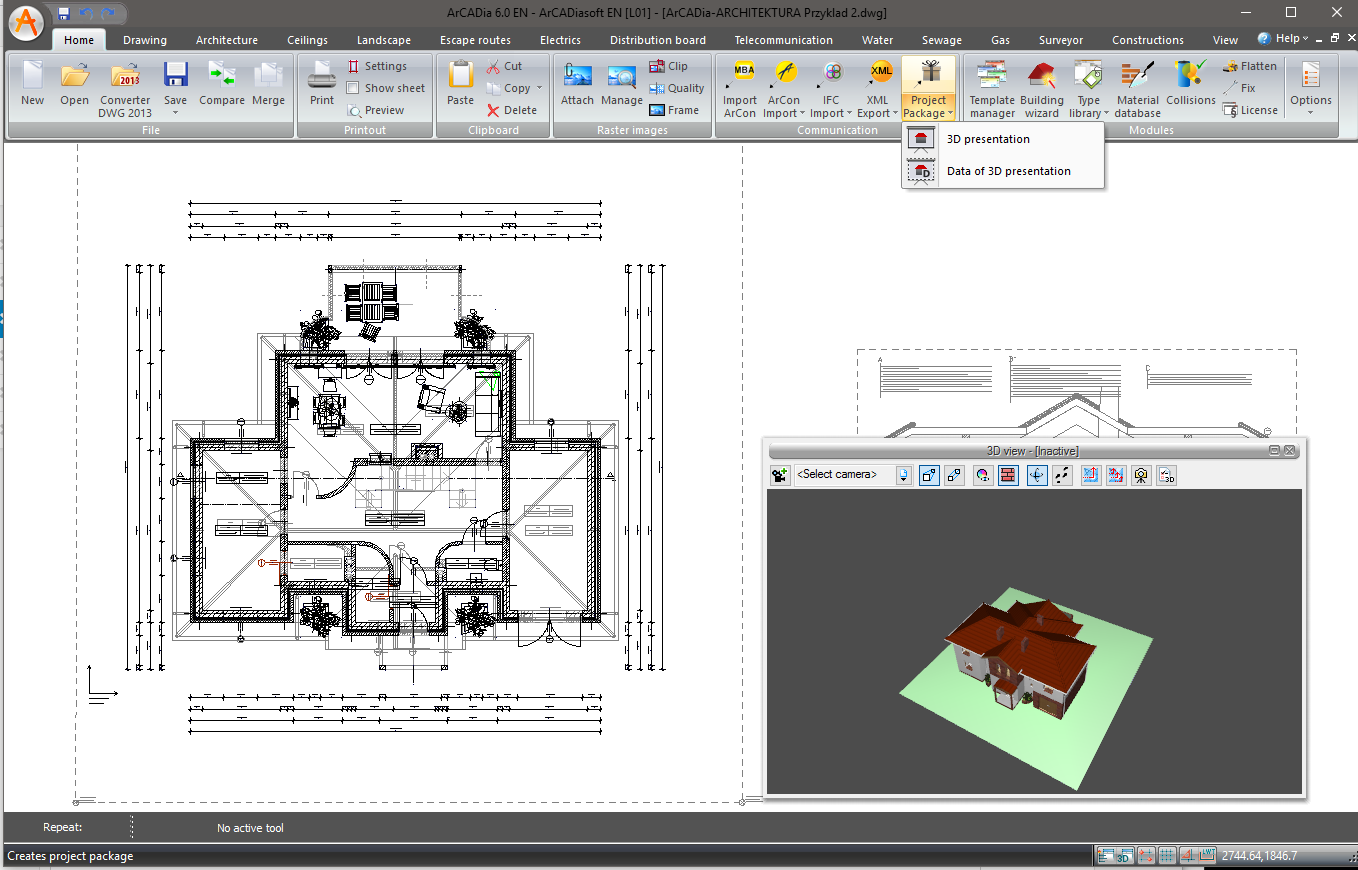
What is ArCADia-3D MAKER?
     ArCADia-3D MAKER saves a 3D project from the ArCADia BIM system.

The ArCADia program has the following modules:
  • ArCADia-3D MAKER, which has a saving option for a 3D project.
  • ArCADia-3D VIEWER, which allows the user to view a 3D project without the need to install ArCADia.
  • There are two options for saving a project presentation: with or without the ArCADia-3D VIEWER browser. The browser, i.e. ArCADia-3D VIEWER can be downloaded from the website and installed independently of the ArCADia BIM software.
ความต้องการระบบ
  • ArCADia LT or ArCADia 10 or ArCADia PLUS 10 or Autodesk software AutoCAD® 2014/2015/2016/2017
  • If an industry-specific module is installed as an overlay for AutoCAD® software, ArCADia AC module is required.
  • Pentium-class computer (Intel Core i5 recommended)
  • 2 GB RAM minimum (8 GB recommended)
  • About 3 GB free hard disc space for installation
  • A graphics card compatible with DirectX 9.0 (a 1GB RAM card recommended)
  • OS: Windows 10 or Windows 8 or Windows 7